Садовая скамейка со спинкой — удобное место для отдыха и стильный элемент ландшафта. В статье представлены чертежи и пошаговая инструкция по изготовлению деревянной скамейки своими руками. Вы узнаете, как выбрать материалы, какие инструменты понадобятся, а также получите советы по дизайну и конструкции. Эта информация подойдет как опытным мастерам, так и новичкам, желающим создать уютное место для отдыха в саду.
Виды садовых скамеек
Садовые скамейки можно классифицировать по нескольким критериям. В первую очередь стоит обратить внимание на их мобильность:
-
Переносные скамейки. Эти модели можно разместить в любом уголке сада и убрать на хранение в зимний период или при плохой погоде. Их размеры и вес должны быть такими, чтобы их было удобно перемещать по участку. Также необходимо предусмотреть место для хранения в сарае или другом помещении.
-
Стационарные скамейки. Эти конструкции устанавливаются на заранее выбранном месте и не предназначены для перемещения. Чтобы защитить их от влаги и других внешних факторов, требуется периодически обновлять краску и проводить косметический ремонт. Для таких скамеек следует выбирать прочные и долговечные материалы.
Существует несколько типов конструкций садовых скамеек, и основное различие заключается в их форме:
- Обычная лавка. Это самая простая модель, представляющая собой доску, установленную на опорах нужной высоты. Ее недостаток заключается в невозможности полностью расслабиться, так как приходится удерживать тело в вертикальном положении. Обычно такие лавки устанавливаются в паре со столом.
- Скамейка со спинкой. Это наиболее удобный и комфортный вариант, который позволяет человеку откинуться на спинку и полностью расслабиться. Такие скамейки являются универсальными и эффективными, предоставляя возможность как быстро присесть, так и провести длительное время на свежем воздухе в приятной беседе.
Несмотря на ограниченное количество конструкций, разнообразие дизайнерских и стилистических решений для скамеек просто огромно. Используются различные материалы и применяются уникальные технологии для создания изделий по индивидуальным проектам.
Создание садовой скамейки из дерева своими руками — это не только увлекательный процесс, но и возможность добавить индивидуальности в ландшафтный дизайн. Эксперты отмечают, что наличие четких чертежей и пошаговой инструкции значительно упрощает задачу, особенно для начинающих мастеров. Правильный выбор древесины, такой как сосна или дуб, обеспечивает долговечность и устойчивость к внешним воздействиям.
Кроме того, важно учитывать эргономику: высота сиденья и угол наклона спинки должны быть комфортными для отдыха. Специалисты рекомендуют использовать качественные крепежные элементы и защитные покрытия, чтобы продлить срок службы изделия. В итоге, собственноручно изготовленная скамейка станет не только функциональным элементом, но и стильным акцентом в саду.
https://youtube.com/watch?v=WKQzlGQgDBs
Цены на готовые садовые скамейки
Дачные скамейки
| Этап работы | Описание действия | Необходимые материалы/инструменты |
|---|---|---|
| 1. Планирование и проектирование | Определение размеров, формы и стиля скамейки. Создание чертежа с указанием всех деталей и их габаритов. | Бумага, карандаш, линейка, рулетка, калькулятор. |
| 2. Подготовка материалов | Закупка древесины (брус, доски), крепежных элементов, защитных покрытий. Распил древесины по размерам согласно чертежу. | Деревянный брус (50х50 мм, 50х100 мм), доски (20-30 мм толщиной), саморезы по дереву, болты с гайками, шайбы, антисептик, лак/краска, ножовка/циркулярная пила, стусло, рулетка, угольник. |
| 3. Изготовление ножек и опор | Сборка каркаса ножек и опор для спинки. Соединение элементов с помощью саморезов или болтов. | Деревянный брус, саморезы/болты, шуруповерт/дрель, сверла, ключ гаечный. |
| 4. Сборка сиденья | Крепление досок сиденья к каркасу. Обеспечение равномерных зазоров между досками. | Доски для сиденья, саморезы, шуруповерт, рулетка. |
| 5. Изготовление и крепление спинки | Сборка каркаса спинки. Крепление досок спинки к каркасу и к опорам. | Деревянный брус, доски для спинки, саморезы/болты, шуруповерт/дрель. |
| 6. Финишная обработка | Шлифовка всех поверхностей для удаления неровностей и заусенцев. Обработка древесины антисептиком и покрытие лаком или краской. | Шлифовальная машинка/наждачная бумага, кисти/валик, антисептик, лак/краска, перчатки, респиратор. |
| 7. Установка и проверка | Установка скамейки на выбранное место. Проверка устойчивости и прочности конструкции. | — |
Интересные факты
Вот несколько интересных фактов о создании садовой скамейки со спинкой из дерева своими руками:
-
Экологичность и устойчивость: Использование древесины для создания садовой мебели не только придаёт ей естественный вид, но и делает её более устойчивой к внешним воздействиям, если правильно обработать материал. Например, применение масла или лака может значительно увеличить срок службы скамейки, защищая дерево от влаги и вредителей.
-
Индивидуальный дизайн: Создавая скамейку своими руками, вы можете адаптировать её размеры и форму под свои нужды и стиль сада. Это позволяет не только создать уникальный предмет мебели, но и гармонично вписать его в общий ландшафтный дизайн.
-
Польза для здоровья: Работая с деревом, вы не только развиваете навыки ручного труда, но и получаете физическую активность на свежем воздухе. Кроме того, занятия DIY (сделай сам) могут быть отличным способом снять стресс и повысить общее настроение, так как процесс создания чего-то своими руками приносит удовлетворение и радость.
Подготовительные работы
Перед тем как начать изготовление скамейки, необходимо выполнить ряд подготовительных шагов. Важнейшим из них является разработка проекта, чертежа или хотя бы эскиза будущего изделия. Это позволит четко определить размеры, форму и стиль, а также уточнить все важные пропорции (высота и ширина сиденья и спинки, другие параметры). Кроме того, важно определиться с технологическими аспектами — выбрать тип скамейки, материал для ее создания, подготовить необходимые инструменты и так далее. Давайте подробнее рассмотрим эти этапы:
Выбор материала
Каждый владелец частного дома обладает некоторыми навыками работы с тем или иным материалом. Очевидно, что это и будет определяющим фактором при создании проекта. Кроме того, следует учесть:
- Прочность, долговечность, декоративные возможности.
- Наличие и доступность материала.
- Возможность обработки в домашних условиях.
- Количество и доступность инструментов, необходимых для выполнения работ.
Руководствуясь этими соображениями, производят выбор материала. Возможные варианты:
- Металл. Обеспечивает высокую прочность и долговечность. Возможны разные варианты технологии — сварка, ковка, сборка из готовых профильных элементов. Требует наличия соответствующего оборудования и защиты от коррозии. Как правило, металлические скамейки делают стационарными из-за большого веса.
- Древесина. Работа с деревянными деталями проще и легче, а базовые навыки имеются практически у каждого домашнего мастера. Материал позволяет реализовать множество дизайнерских идей, создать любые формы. Кроме того, дерево — хороший теплоизолятор. Основной недостаток — склонность к короблению, растрескиванию, крайне низкая устойчивость к воздействию влаги. Если деревянную скамейку не защитить от контактов с водой, она быстро сгниет. Возможно изготовление как стационарных, так и переносных конструкций.
- Пластик. Не восприимчив к воздействию влаги, не гниет, не изменяет линейных размеров. Малый вес позволяет делать переносные конструкции. К недостаткам следует отнести подверженность воздействию ультрафиолетовых лучей, а также хрупкость при сильном охлаждении. Но основной недостаток пластика — отсутствие возможности высокотехнологической обработки. Обычно используются готовые изделия, но есть некоторые разработки из пластиковых бутылок или канализационных труб.
- Бетон. Используется для изготовления опорных элементов. Процесс несложен, главное условие — наличие формы для отливки. Основным преимуществом является простота, полная идентичность всех опор, возможность изготовления большого количества элементов. Кроме того, основания бетонных скамеек незачем погружать в грунт — они массивные и могут быть просто поставлены на землю. Недостаток — большой вес бетона, необходимость соблюдать определенное время выдержки для кристаллизации.
- Натуральный камень. Стильные и привлекательные конструкции, которые создаются из подручного или специально привезенного материала. Чаще всего делают каменные основания с деревянным или съемным мягким сиденьем.
- Комбинированные конструкции. Сочетание разных материалов используется часто. Например, делаются металлические опоры, на которые крепят деревянные или пластиковые спинки и сиденья. Комбинированные скамейки позволяют объединить прочность металла, теплоту и легкость обработки древесины, реализовать разнообразные декоративные возможности материалов наиболее удачным способом.
Выбирая, из чего бы сделать скамейку, необходимо помнить о инструментах. Каждый вариант конструкции требует использования определенного набора приспособлений, ручных или электроинструментов, предназначенных для работы с тем или иным материалом. Кроме этого, понадобятся измерительные устройства, для стационарных видов надо сделать углубления под заливку цементным раствором. Перечень нужного набора инструментов следует максимально полно составить на стадии проектирования, чтобы во время сборки скамейки не отвлекаться на поиски каких-либо мелочей.
Стационарные или переносные
Стационарные скамейки устанавливаются на опоры, которые фиксируются в земле и заливаются цементом для обеспечения надежности и устойчивости. Эти конструкции нельзя перемещать, поэтому выбор места для их установки должен быть тщательно обдуман.
Переносные скамейки, напротив, обладают мобильностью и могут быть размещены в любом удобном месте, а также легко перемещены. Это идеальный вариант, если планировка территории еще не окончательно определена.
Такие скамейки используются в более щадящих условиях, так как не подвергаются воздействию дождя и снега, а также испытывают меньшие механические нагрузки. Тем не менее, постоянное перемещение таких изделий требует определенных усилий, а для их хранения необходимо выделить специальное место, предпочтительно в закрытом помещении. Иногда на одном участке устанавливают как стационарные, так и переносные скамейки. Первые создают основное пространство для отдыха, а вторые могут быть использованы в случае необходимости, например, при большом количестве гостей, проведении мероприятий или в других ситуациях.
Форма и размеры
Форма скамеек может быть разной:
- прямые;
- угловые;
- круглые;
- прямоугольные.
Большинство таких изделий устанавливаются стационарно. Размеры выбираются исходя из особенностей участка, предполагаемого количества людей и эргономических требований человеческого тела.
Обратите внимание! Чем тяжелее и массивнее скамейка, тем сложнее ее утащить с участка любителям легкой наживы.
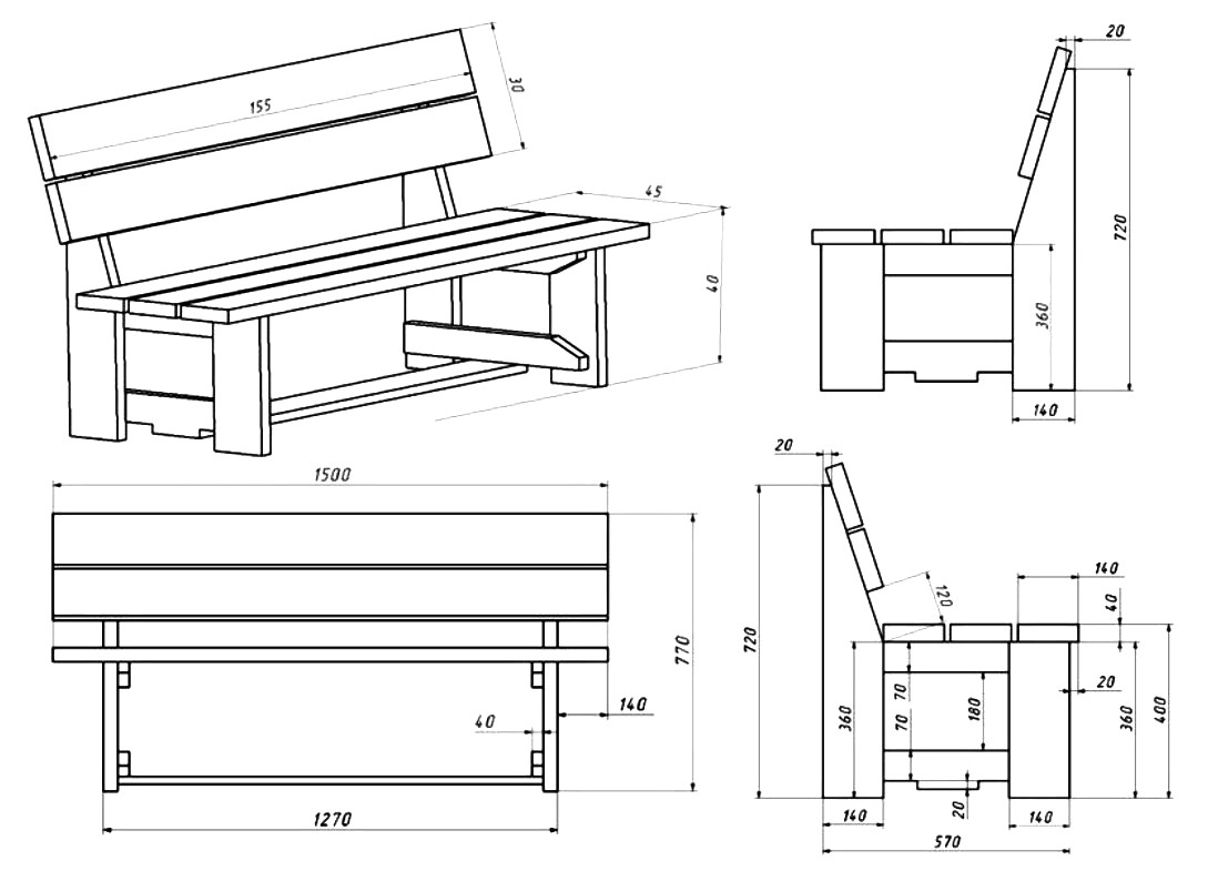
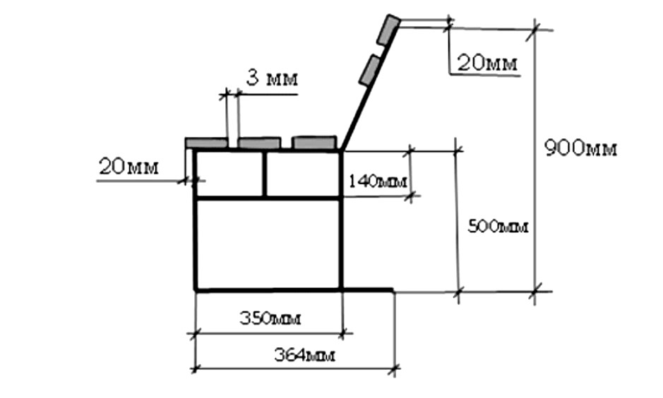
Существуют рекомендуемые соотношения в пропорциях скамеек:
Таблица 1. Рекомендуемые параметры скамеек.
| Параметр | Рекомендуемое значение |
|---|---|
| Высота сиденья над уровнем почвы | 400-450 мм |
| Глубина сиденья | 400-500 мм |
| Ширина сиденья | 1500 мм |
| Высота спинки | 900-950 мм |
| Угол наклона спинки | 115-120° к горизонтали |
Эти значения разработаны ведущими инженерами и врачами и позволяют человеку принять максимально расслабленную и комфортную позу.
Выбор стиля и дизайна скамейки
Создание дизайна — это многогранный и сложный процесс, который играет ключевую роль в разработке проекта. Простые модели может нарисовать любой желающий, но для более сложных потребуется значительная фантазия и художественные навыки. В этом плане интернет может стать отличным помощником, так как в нем представлено множество фотографий готовых изделий, выполненных из различных материалов и в разных стилях.
Обычно владельцы земельных участков стремятся создать зоны отдыха в едином стиле, который гармонично сочетается с другими элементами благоустройства, формируя целостный облик участка. В этом вопросе нет строгих рамок — основными критериями являются личные предпочтения, чувство стиля и меры.
В интернете также можно найти готовые чертежи садовых скамеек, которые содержат размеры и другую полезную информацию. Использование таких изображений может значительно вдохновить на новые идеи и сэкономить время и усилия тем, кто испытывает трудности с самостоятельным созданием оригинального и привлекательного дизайна.
Узнайте, как самостоятельно построить бассейн на даче, а также ознакомьтесь с различными вариантами и пошаговыми инструкциями в специальной статье на нашем сайте.
Пошаговая инструкция изготовления скамейки из дерева
Рассмотрим порядок действий при создании деревянной садовой скамейки. Будет описан процесс сборки обычного изделия, без сложных декоративных элементов.
Инструменты и материалы
Для выполнения работы вам понадобятся следующие инструменты:
- Дисковая электропила.
- Электролобзик.
- Ручная ножовка.
- Электродрель.
- Ручной или электрический рубанок.
- Шлифовальная машина.
- Шуруповерт с набором бит и саморезами.
- Молоток, плоскогубцы, отвертка и карандаш.
- Линейка, рулетка и угольник.
- Краска, растворитель, кисть или валик (в качестве альтернативы — электрический распылитель).
Цены на популярные модели электро-рубанков
Электрический рубанок
Внимание! Указаны только необходимые инструменты, по требованиям собственного проекта или технологической необходимости перечень может быть расширен.
Материалы:
- Обрезные доски толщиной 30-50 мм в зависимости от размеров скамейки.
- Бруски сечением от 30:50 до 50:50 мм для сборки плоскостей спинки и сиденья.
Древесина должна быть качественно высушена до нормативной влажности.
Таблица 2. Вес древесины разных пород в зависимости от влажности.
| Порода дерева | Вес 1 м3 древесины разной влажности | |||
|---|---|---|---|---|
| 15 % | 30 % | 50 % | 70 % | |
| Сосна | 510 кг | 550 кг | 640 кг | 720 кг |
| Лиственница | 670 кг | 710 кг | 820 кг | 930 кг |
| Береза | 640 кг | 680 кг | 790 кг | 890 кг |
| Ель | 450 кг | 490 кг | 560 кг | 640 кг |
Пользуясь данными этой таблицы можно примерно определить, насколько материал подготовлен к работе. Влажность 70 % — это свежесрубленная древесина, а 15 % соответствуют состоянию массива дерева камерной сушки, который некоторое время хранился вне камеры. Взвесив соответствующее количество досок, можно получить представление о наличии влаги и возможности работы с данным материалом без досушивания.
Важно! Плоскости сиденья и спинки могут быть изготовлены из досок, но бруски не так сильно коробятся, рассыхаются, менее подвержены растрескиванию и развороту «пропеллером».
Порядок сборки
Шаг 1. На основе чертежа изготавливаются заготовки из древесины.
Шаг 2. Обрабатываются поверхности деталей с помощью ручного или электрического рубанка.
Шаг 3. Удаляются наклонные участки с опор спинки и нижних поперечин.
Шаг 4. Сборка опорных элементов осуществляется с использованием саморезов или гвоздей, что упрощает процесс, но может ослабить соединение. При соединении деталей важно проверять их положение с помощью угольника.
Шаг 5. Опорные элементы соединяются с нижней перекладиной.
Шаг 6. Устанавливаются планки, формирующие поверхность сиденья.
Шаг 7. Устанавливаются планки, создающие спинку.
Шаг 8. Собранная скамейка обрабатывается шлифовальной машинкой, чтобы удалить острые углы, неровности и заусенцы, оставшиеся после рубанка. Рекомендуется снимать фаски, чтобы избежать заноз.
Шаг 9. Отшлифованное изделие покрывается не менее чем двумя слоями краски. Перед нанесением следующего слоя необходимо дождаться полного высыхания предыдущего. Иногда выполняется межслойная шлифовка для повышения гладкости и аккуратности поверхности. Количество слоев не имеет строгих требований, ориентируйтесь на внешний вид изделия.
Шаг 10. Для создания стационарных деревянных скамеек можно использовать ту же технологию, добавив этапы выемки углублений и заливки бетонных оснований для деревянных или металлических опор.
Собранная скамейка крепится к ним с помощью резьбовых соединений или обычных гвоздей. Стационарный вариант повышает устойчивость изделия, но усложняет процесс периодической покраски, так как скамейки невозможно перевернуть для удобства работы.
Видео – Простая деревянная скамья своими руками
https://youtube.com/watch?v=nW1QBc1xNAU
Пошаговая инструкция по сборке садовой скамейки из металла
Конструкция стационарной металлической скамейки довольно проста. Она состоит из опор, которые забетонированы в землю, к которым привариваются уголки для установки деревянного сиденья и спинки. Монтаж таких скамейок может выполнить даже новичок, и не требует отдельного объяснения.
Тем, кто не имеет профессиональной подготовки, для сборки переносной металлической скамейки рекомендуется использовать профильные трубы. Они имеют плоские поверхности, что позволяет надежно соединять детали как встык, так и внахлест. Для сборки потребуется сварочный аппарат с электродами или болты с гайками. Также понадобятся:
- Болгарка с отрезным диском для металла.
- Напильник для обработки торцов труб.
- Линейка, рулетка, угольник.
- Мел или карандаш.
- Электродрель с набором сверл.
- Болты с гайками для крепления планок сиденья (или для полной сборки скамейки).
- Краска, кисти или распылитель.
- Средства индивидуальной защиты — сварочный костюм, маска, защитные очки, перчатки и т.д.
Цены на угловые шлифмашинки (болгарки)
Угловые шлифмашинки (болгарки)
Порядок действий:
- По данным рабочего чертежа нарезать по длине заготовки.
- Зачистить болгаркой или напильником острые края.
- Приварить согласно данным чертежа детали боковых опор. Следует постоянно корректировать положение деталей по угольнику, проверять длину диагоналей.
- Соединить боковые опоры нижней перекладиной, прихватив ее точечными схватками и тщательно выровнять положение по угольнику.
- Прихватить детали спинки, еще раз проверить их положение с помощью угольника.
- Проварить все соединения для получения максимальной прочности.
- Молотком отбить окалину, болгаркой зачистить участки с неаккуратно выполненными швами.
- Покрасить каркас скамейки двумя слоями краски.
- Накернить и просверлить отверстия для установки планок спинки и сиденья.
- Установить сиденье и спинку. Для удобства из заранее покрывают лаком или красят.
Цены на различные виды лаков по дереву для наружных работ
~~Лак для дерева, предназначенный для наружного использования~~
При нанесении нескольких слоев краски важно делать перерывы для полного высыхания каждого слоя. В противном случае покрытие может потерять свою влагостойкость, начать сморщиваться или образовывать пузыри.
Кованые садовые скамейки создаются мастерами, обладающими необходимыми навыками и условиями для работы. Изделия, выполненные в этой технике, отличаются уникальной эстетикой и стилем, придавая садовому участку особый шарм. Без соответствующего опыта заниматься изготовлением таких конструкций нецелесообразно, однако можно заказать отдельные детали или элементы и самостоятельно собрать их на своем участке.
Видео – Изготовление и установка лавочки из металлического профиля
Иногда поступают еще проще — собирают металлический каркас, который украшают декоративными элементами, заказанными в специализированной мастерской. В результате получается высокохудожественное изделие, не уступающее по внешнему эффекту цельнокованым скамейкам от известных мастеров. Подобные образцы нуждаются в соответствующем уходе, защите от внешних воздействий и коррозии.
https://youtube.com/watch?v=NKi1g4r1qz8
Полезные советы
Мы знаем, как можно еще больше улучшить ваш участок! Рекомендуем ознакомиться с нашим материалом на тему – Живая изгородь (быстрорастущая многолетняя вечнозеленая).
Профессионалы применяют различные методы, которые помогают ускорить процесс сборки или отделки готовых изделий. Давайте рассмотрим некоторые из них:
- Сборка металлических скамеек с использованием болтов позволяет при необходимости разобрать конструкцию и повторно использовать материалы. Важно надежно защитить гайки от коррозии, чтобы избежать необходимости их срезания.
- Для упрощения отделки рекомендуется окрашивать детали до их сборки. Это касается деревянных спинок и сидений, которые крепятся к металлическому каркасу, а также других узлов, не требующих сварки. По крайней мере, стоит нанести первый слой покрытия, хотя можно выполнить и полноценную финишную отделку.
- При создании тяжелых элементов (бетонных отливок, массивных сварных опор для длинных конструкций) рекомендуется проводить работы как можно ближе к месту установки, чтобы избежать необходимости переносить готовое изделие на значительное расстояние.
Уход за садовой скамейкой из дерева
Садовая скамейка из дерева — это не только функциональный элемент вашего участка, но и важная часть ландшафтного дизайна. Чтобы она служила долго и радовала глаз, необходимо правильно ухаживать за ней. Уход за деревянной скамейкой включает в себя несколько ключевых аспектов, которые помогут сохранить её в идеальном состоянии на протяжении многих лет.
1. Регулярная очистка
Первый шаг в уходе за садовой скамейкой — это регулярная очистка от грязи, пыли и мусора. Для этого используйте мягкую щетку или тряпку. Важно избегать абразивных материалов, которые могут повредить поверхность дерева. Если скамейка загрязнена сильнее, можно использовать мыльный раствор. После очистки обязательно промойте поверхность чистой водой и дайте ей высохнуть.
2. Защита от влаги
Дерево подвержено воздействию влаги, что может привести к гниению и образованию плесени. Чтобы защитить скамейку от влаги, рекомендуется использовать специальные водоотталкивающие пропитки или масла. Наносите их на поверхность скамейки один-два раза в год, особенно перед началом сезона дождей. Это поможет создать защитный барьер и продлить срок службы древесины.
3. Обработка антисептиками
Для предотвращения гниения и поражения древесины насекомыми, такими как термиты, необходимо периодически обрабатывать скамейку антисептиками. Выбирайте качественные составы, предназначенные для наружного использования. Обработка должна проводиться в сухую погоду, чтобы антисептик хорошо впитался и создал защитный слой.
4. Шлифовка и покраска
Со временем поверхность скамейки может потерять свою первоначальную гладкость, появятся царапины и неровности. Для восстановления внешнего вида рекомендуется периодически шлифовать скамейку мелкозернистой наждачной бумагой. После шлифовки можно нанести новый слой краски или лака, что не только улучшит внешний вид, но и обеспечит дополнительную защиту от внешних факторов.
5. Хранение в зимний период
Если вы живете в регионе с холодными зимами, рекомендуется на зимний период убирать скамейку в закрытое помещение или накрывать её защитным материалом. Это поможет избежать воздействия низких температур и снега, которые могут негативно сказаться на состоянии древесины.
6. Проверка креплений
Регулярно проверяйте крепления и соединения скамейки. Со временем винты и болты могут ослабевать, что может привести к поломке конструкции. При необходимости подтягивайте крепежные элементы или заменяйте их на новые.
Следуя этим простым рекомендациям, вы сможете значительно продлить срок службы вашей садовой скамейки из дерева и сохранить её привлекательный внешний вид на многие годы. Уход за ней не займет много времени, но принесет ощутимую пользу и удовольствие от использования.
Вопрос-ответ
Какие материалы понадобятся для изготовления садовой скамейки?
Для изготовления садовой скамейки со спинкой из дерева вам понадобятся: деревянные доски (например, сосна или дуб), саморезы, клей для дерева, лак или краска для защиты от влаги, а также инструменты, такие как пила, дрель, шлифовальная машина и уровень.
Как правильно выбрать место для установки скамейки в саду?
При выборе места для установки скамейки учитывайте такие факторы, как освещенность, уровень влажности и вид на окружающий ландшафт. Лучше всего выбирать место в тени деревьев или под навесом, чтобы обеспечить комфортное использование в жаркие дни.
Сколько времени займет изготовление скамейки своими руками?
Время, необходимое для изготовления скамейки, зависит от вашего опыта и сложности конструкции. В среднем, на создание скамейки может уйти от 4 до 8 часов, включая время на подготовку материалов, сборку и отделку.
Советы
СОВЕТ №1
Перед началом работы обязательно составьте подробный план и чертежи вашей садовой скамейки. Это поможет избежать ошибок в процессе сборки и обеспечит правильные пропорции. Используйте специальные программы для проектирования или просто нарисуйте эскиз на бумаге.
СОВЕТ №2
Выбирайте качественные материалы для изготовления скамейки. Дерево должно быть устойчивым к воздействию влаги и солнечных лучей, поэтому лучше всего использовать такие породы, как лиственница, дуб или сосна, обработанные защитными составами.
СОВЕТ №3
При сборке скамейки уделите внимание крепежным элементам. Используйте антикоррозийные винты и болты, чтобы обеспечить долговечность конструкции. Также не забудьте про надежные соединения, такие как шиповые или шкантовые, которые придадут дополнительную прочность.
СОВЕТ №4
После завершения сборки обязательно обработайте скамейку защитным лаком или краской, чтобы продлить срок службы изделия. Регулярно проверяйте состояние скамейки и при необходимости обновляйте защитное покрытие, чтобы предотвратить гниение и повреждения.










