Козырек над крыльцом — это не только декоративный, но и функциональный элемент, защищающий вход в дом от дождя, снега и солнца. В статье мы расскажем, как самостоятельно изготовить козырек из поликарбоната, который легок, прочен и долговечен. Вы узнаете о различных видах козырьков, получите расчеты материалов, чертежи и пошаговую инструкцию по сборке и монтажу. Эта информация поможет сэкономить на услугах специалистов и создать стильный, функциональный элемент для вашего дома.
Особенности поликарбонатного козырька
Козырек, хотя и не обеспечивает полноценной защиты от солнечных лучей и не справляется с ветром, все же приносит ряд значительных преимуществ:
- Защита от осадков, о чем мы уже упоминали. Многие люди устанавливают входные двери, не уточнив, можно ли их использовать на улице. Если дверь не защищена должным образом, замки и петли могут начать коррозировать и забиваться грязью. Наличие крыши частично решает эту проблему. Почему частично? Потому что влага может попадать на металл из воздуха, что особенно актуально в местах с частыми туманами.
- Эта защита также будет полезна, когда вы окажетесь под дождем, пытаясь найти нужный ключ. Зачем промокать, если можно укрыться под козырьком и спокойно заниматься своими делами?
- Козырек выполняет и декоративную функцию, придавая фасаду завершенный вид. Если мастер проявил креативность, добавив элементы ковки и другие детали, вход в дом всегда будет радовать глаз ваших гостей.
Эти преимущества связаны с самой конструкцией, а что можно ожидать, выбирая поликарбонат в качестве кровельного материала:
- Поликарбонат пропускает свет, рассеивает его и делает мягким. Хотя он не создаст тени в жару, в холодное время года крыльцо не будет погружено в темноту.
- Материал доступен в различных цветах, среди которых наиболее популярны тонированные (коричневые) и прозрачные варианты.
- Поликарбонат обладает высокой пластичностью, что позволяет легко обшивать конструкции с округлыми формами, в отличие от большинства аналогичных материалов.
- Эластичность поликарбоната объясняется его сотовой структурой, что также упрощает его резку – для этого не нужны специальные инструменты. Кроме того, легкий вес поликарбоната позволяет избежать необходимости в мощных каркасах, так как он создает меньшую нагрузку по сравнению с металлопрофилем.
- Поликарбонат отлично переносит температурные колебания. Даже в суровые зимы он сохраняет свои свойства и служит не менее 15-20 лет.
- Монтаж листов не вызывает трудностей. Вам понадобится только хороший шуруповерт и уверенность в работе на высоте. Все этапы установки можно выполнить самостоятельно.
- Материал обладает высокой прочностью и способен выдерживать удары града. Конечно, он может быть пробит, но только если градина будет размером не меньше хорошей сливы.
- Несмотря на полимерную основу, поликарбонат не является горючим материалом. При воздействии открытого пламени он лишь плавится. Хотя это свойство не всегда полезно для уличного использования, о нем стоит помнить.
Это далеко не все достоинства поликарбоната. Мы перечислили лишь самые значимые для потребителей.
Эксперты в области строительства и дизайна отмечают, что козырек над крыльцом из поликарбоната становится все более популярным выбором среди владельцев частных домов. Это связано с его легкостью, прочностью и простотой в монтаже. При правильном подходе, сборка такого козырька может быть выполнена своими руками, что существенно экономит средства. Специалисты рекомендуют тщательно изучить чертежи, чтобы учесть все нюансы конструкции, включая угол наклона и крепежные элементы. Поликарбонат, благодаря своей прозрачности, позволяет сохранить естественное освещение, а разнообразие цветов и текстур дает возможность гармонично вписать козырек в общий стиль дома. Однако важно помнить о качественных материалах и соблюдении технологий монтажа, чтобы обеспечить долговечность и надежность конструкции.
https://youtube.com/watch?v=Ps02dk0xR_k
Виды козырьков
Козырьки могут иметь разную форму, что определяется не только их внешний вид, но и эксплуатационные свойства. Различаю здесь следующие виды.
| Этап работ | Описание действия | Необходимые инструменты и материалы |
|---|---|---|
| 1. Проектирование и замеры | Определение размеров козырька, выбор формы (арочный, односкатный, двускатный), расчет угла наклона для стока воды. | Рулетка, карандаш, бумага, калькулятор, уровень. |
| 2. Подготовка материалов | Закупка поликарбоната (сотовый или монолитный), профилей (алюминиевые, стальные), крепежных элементов, герметика. | Ножовка по металлу, ножницы по металлу, болгарка (для профилей), маркер. |
| 3. Изготовление каркаса | Нарезка профилей по размерам, сварка или сборка каркаса на болтах. Обработка антикоррозийным составом. | Сварочный аппарат (если сварка), дрель, сверла, гаечные ключи, антикоррозийная грунтовка, кисть. |
| 4. Крепление каркаса к стене | Разметка мест крепления, сверление отверстий, установка анкеров или дюбелей. | Перфоратор, сверла по бетону/кирпичу, молоток, уровень. |
| 5. Монтаж поликарбоната | Нарезка листов поликарбоната по размеру, крепление к каркасу с помощью термошайб и саморезов. Защита торцов профилем. | Нож для поликарбоната, шуруповерт, термошайбы, саморезы, торцевой профиль, герметик. |
| 6. Герметизация и финишная отделка | Заполнение швов герметиком, установка водосточной системы (при необходимости). | Пистолет для герметика, герметик, водосточный желоб, кронштейны. |
Интересные факты
Вот несколько интересных фактов о козырьках над крыльцом из поликарбоната:
-
Легкость и прочность: Поликарбонат в 200 раз прочнее стекла при значительно меньшем весе. Это делает его идеальным материалом для козырьков, так как он устойчив к ударам и не ломается, что особенно важно в условиях сильного ветра или града.
-
Устойчивость к ультрафиолету: Современные поликарбонатные панели имеют специальное покрытие, защищающее от ультрафиолетового излучения. Это позволяет не только продлить срок службы козырька, но и защитить входную зону от выцветания и разрушения.
-
Простота монтажа: Козырьки из поликарбоната можно установить самостоятельно, используя простые инструменты и материалы. Чертежи и схемы сборки обычно доступны в интернете, что позволяет даже новичкам справиться с задачей. Правильный монтаж обеспечивает надежную защиту от дождя и снега, а также добавляет эстетическую привлекательность фасаду дома.
Односкатные
Одним из самых простых и эстетически привлекательных вариантов является односкатный навес. Для его создания потребуется установить прямой каркас, после чего просто накрыть его листами. Этот вариант не потребует значительных финансовых затрат, однако у него есть и свои недостатки. Главный из них – небольшой угол наклона, что приводит к накоплению снега зимой. Также простой дизайн может не удовлетворить вкусы некоторых людей, но если вы не предъявляете высоких требований, смело выбирайте этот вариант – он станет выгодным вложением в любом случае.
Среди преимуществ можно выделить отсутствие необходимости в установке вертикальных опор для конструкции, хотя это зависит от её размеров. Химический анкер не повредит внутреннюю структуру кирпича – достаточно аккуратно просверлить отверстие.
Полезная информация! Если фасад вашего дома отделан декоративным кирпичом, который не выдерживает механических нагрузок, лучше не привязывать козырек к нему. В таком случае стоит установить дополнительные опоры и крепить все элементы исключительно на химические анкера.
Двускатные
Чуть более сложный в исполнении тип козырька – двускатный. Это классическое, с детства, представление о форме крыши. Тут мы уже можем задать достаточно большой угол наклона скатов, что избавит от основной проблемы первого варианта. В конструктивном плане, то есть по сложности построения каркаса, разница будет лишь по времени, так как вместо двух ферм потребуется минимум четыре.
Арочные
Арочные козырьки пользуются большой популярностью благодаря своему элегантному дизайну и экономии металла при создании каркаса. Вы можете изготовить такой козырек самостоятельно, обратившись в специализированную компанию с просьбой согнуть трубы для каркаса по вашему заданному радиусу. Однако чаще всего эту задачу доверяют профессионалам, которые уже знают, к кому обратиться.
Благодаря своей полукруглой форме, снег не задерживается на навесе, что предотвращает его накопление. Кроме того, нет необходимости устанавливать систему водоотведения на передней части конструкции.
Куполообразные
Намного реже встречаются куполообразные навесы, как на фото ниже. И дело не в том, что они не нравятся люди, а в том, что сделать их очень сложно и мастера могут просить за такую работу большую цену. Технически он удобен, как и арочный, однако если захотите установить водоотвод, возникнут проблемы, именно из-за формы конструкции. В результате во время дождя вода будет капать по всему его периметру, и не всегда будет приятно пробегать через водяную завесу.
Сложной геометрической формы
Существуют также козырьки с необычной геометрией. Они выглядят очень стильно и привлекательно. Однако стоит учитывать, что такие конструкции лучше доверять опытным специалистам, что может привести к дополнительным затратам.
Технические характеристики эксплуатации будут полностью зависеть от выбранной формы. Например, на модели, изображенной на фото ниже, снег будет скапливаться более активно из-за уменьшения угла наклона кровли к краям.
Создание таких навесов требует разработки сложных чертежей и проведения профессиональных расчетов. Поэтому имеет смысл привлечь не только собственное воображение, но и профессионального дизайнера, который сможет создать для вас уникальный козырек.
Цены на готовые козырьки для крыльца
Козырёк для крыльца
Расчеты материала, чертежи и прочая подготовка
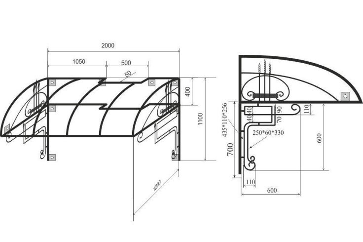
Любая работа по проектированию начинается с создания эскиза и чертежа. Козырек не является исключением, поэтому, если вы решили заняться этим самостоятельно, не забудьте хотя бы на скорую руку нарисовать вариант, четко указав размеры всех элементов конструкции. Это значительно упростит процесс работы. В идеале стоит учесть нагрузки, добавив поправки на снег, ветер и другие факторы, но чаще всего мы действуем проще – делаем все с запасом, что свойственно русскому подходу.
Особенно удобно использовать чертеж для расчета необходимого материала. Вы сможете наглядно увидеть все стойки, перекладины и соединения, что позволит достичь наиболее точного результата. Если у вас возникают сложности с этим этапом, возможно, лучше не начинать работу самостоятельно – обратитесь к профессионалам. В качестве альтернативы можно воспользоваться онлайн-калькулятором, который поможет вам с расчетами.
Делаем козырек своими руками
Перед вами на фотографии показан небольшой каркасный дом, обшитый сайдингом, на который мы и будем монтировать навес над входом. Для изготовления каркаса мы используем профилированную прямоугольную трубу из металла и обошьем мы его, как все уже догадались, поликарбонатом.
Таблица 1. Необходимые инструменты.
| Инструменты, фото | Описание |
|---|---|
| Резать металл мы будем болгаркой. К ней покупаем несколько соответствующих кругов. Также этим инструментом мы будем резать поликарбонат на части. | |
| В зависимости от типа основания, к которому вы будете привязывать каркас, может понадобиться перфоратор. Он нужен при работе с бетоном, кирпичом и прочими твердыми материалами. В комплект к нему покупается бур по бетону, в соответствии с диаметром крепежных анкеров. Советуем брать вариант не менее 10 мм. | |
| Поликарбонат присоединяется к каркасу при помощи самонарезающих болтов по металлу. Под них нужно взять мощный шуруповерт или электрическую дрель – можно работать и перфоратором, но это неудобно из-за его габаритов и массы. В дополнение вам понадобится бит-головка на 8 мм. | |
| Элементы каркаса соединяются друг с другом сваркой. Для этого нужен не только аппарат, но и умение с ним обращаться. Если навыка и знания техники безопасности у вас нет, то поручите эту работу мастеру.
Также для этих целей можно использовать и болтовые соединения, но это не очень удобно, да и интересно формы каркасу придать не получится. |
|
| Если вы выбрали тип козырька на опорных столбах, то для их установки, в зависимости от способа монтажа, может понадобиться целый набор для работы с бетоном. Так нужно в тех ситуациях, когда столбы бетонируются в грунте. | |
| Если хотите использовать в каркасе криволинейные детали, то их придется гнуть из труб самому, или заказывать такую работу в специализированных мастерских, предварительно выполнив точные чертежи. Обычно наемная работа стоит намного дешевле нового инструмента, да и для разового монтажа его приобретать нет никакой необходимости. | |
| Ни в какой монтажной работе невозможно обойтись без использования измерительного инструмента. Сюда входят рулетка, карандаш, столярный угольники и маркер для выверения размера деталей, а также строительный уровень любого типа для точного выставления их положения в пространстве. |
Таблица 2. Необходимые материалы.
| Пошаговые фото | Описание |
|---|---|
| Берем бутылку подходящей формы с винтовой крышкой и красим её в выбранный цвет аэрозольной краской. Для чего распыляем её внутри сосуда и хорошенько его встряхиваем. | |
| В крышке бутылки делаем отверстие острым ножом. | |
| Разбираем патрон для лампы и прикручиваем его основание к крышке с помощью болта и гайки. | |
| Закручиваем крышку на бутылку, а головку болта заклеиваем изолентой, чтобы исключить соприкосновение с ним электрического провода. | |
| Зачищаем кончики провода для соединения с патроном и вилкой. Можно взять готовый провод от старой лампы. | |
| Вставляем проводки в зажимы патрона и собираем его, прикручивая к закрепленному на бутылке основанию. | |
| Вкручиваем в патрон лампочку и проверяем работу прибора. | |
| Для изготовления каркаса для абажура разбираем две проволочные садовые опоры, отсоединяя стержни от колец. Они бывают разного диаметра, поэтому абажур можно сделать цилиндрическим или конусным – из колец разного размера. | |
| Из трех стержней делаем держатель для лампочки, выгибая их плоскогубцами и придавая нужную форму. | |
| Концы стержней закрепляем на кольце скотчем. Расстояние между ними должно быть одинаковым. | |
| Примеряем получившуюся конструкцию к патрону и загибаем проволоку вокруг него. | |
| Получившееся внутреннее кольцо также скрепляем скотчем. Все соединения поверх скотча обматываем ниткой и заливаем термоклеем. | |
| Получившуюся деталь и второе проволочное кольцо красим краской из баллончика. | |
| От листа тонкого пластика или плотного тонкого картона отрезаем прямоугольник. Его длина должна быть чуть больше длины окружности кольца, а высота равняться высоте будущего абажура. | |
| Склеиваем прямоугольник в кольцо термоклеем, двухсторонним скотчем или прошиваем на машинке. | |
| Наклеиваем двухсторонний скотч на кольца каркаса и вклеиваем его внутрь получившегося абажура. | |
| Обтягиваем абажур тканью, для чего используем аэрозольный клей. Верхнюю и нижнюю кромку ткани загибаем внутрь, приклеиваем и заправляем за край каркаса. | |
| Надеваем абажур на патрон и пользуемся светильником. |
Сборка и монтаж козырька
Подготовив все необходимые материалы, приступаем к процессу. В следующем разделе будет представлена пошаговая инструкция по созданию простого каркаса, его установке на здание и обшивке поликарбонатом.
Шаг 1 – гибка труб.
Первым делом мы разрабатываем детальный чертеж каркаса и определяем количество и форму всех его элементов. Если в конструкции имеются криволинейные детали, то именно с их изготовления мы и начнем. Трубогибный аппарат функционирует следующим образом:
- Устройство состоит из трех вальцов – два находятся внизу, а один сверху, который прижимает трубу.
- Укладываем трубы на нижние вальцы и прижимаем их верхним, одновременно прогибая до достижения нужного радиуса.
- Управление осуществляется с помощью вентиля.
- Далее начинаем вращать рукоять, которая приводит в движение нижние вальцы.
- В результате трубы проходят через установку и принимают заданную форму.
Полезная информация! Концы труб останутся прямыми, и их придется обрезать позже, поэтому внимательно рассчитывайте длину деталей, чтобы избежать ошибок.
Шаг 2 – резка деталей.
Нарезаем все элементы каркаса по заранее определенным размерам. Рекомендуем работать в перчатках и защитных очках для безопасности.
Шаг 3 – приварка дуг к основанию.
Разложите все части на полу так, как они будут сварены в дальнейшем. Соединяем их с помощью сварки, тщательно контролируя угол в 90 градусов и расстояние между элементами. Чтобы не тратить время на измерения с рулеткой, можно изготовить шаблон из отрезка той же трубы.
Цены на популярные модели сварочных аппаратов
Сварочные аппараты
Так же привариваем и нижнюю направляющую, попутно проверяя угол между деталями.
Шаг 4 – шлифовка швов.
Теперь нам нужно сделать нашу конструкцию более аккуратной. Для этого нужно зачистить сварные швы при помощи болгарки и шлифовального круга. Берите круг потолще, чтобы он не стачивался слишком быстро.
Шаг 5 – присоединение монтажной части и ребер жесткости.
Формируем остальную часть каркаса, которая включает в себя вертикальные стойки, горизонтальные перемычки, примыкающие к стенам, ребра жесткости и горизонтальные связки, соединяющие основание и край свеса. Работа ведется по аналогии – швы хорошо провариваются, а потом шлифуются болгаркой.
Шаг 6 – покраска конструкции.
Сами трубы тоже рекомендуется зашлифовать специальной насадкой в виде металлической щетки, чтобы снять с металла весь окисел. Если этого не сделать, то лакокрасочное покрытие долго держаться на нем не будет.
Красим наш каркас. Использовать для этого лучше грунтующие составы, которые и к ржавчине особо не восприимчивы. Работаем с баллончиком, краскопультом или маленьким валиком. Можете воспользоваться и кисточками, но тогда краска не будет ложиться ровным слоем – будут обязательно следы от ворса, что не критично, но зачем преднамеренно ухудшать внешний вид конструкции. Вам на нее любоваться предстоит не один год.
Шаг 7 – резка поликарбоната.
Размечаем наш лист поликарбоната по размерам каркаса и нарезаем его на куски нужного размера. Режется он болгаркой очень легко. Кстати, обрезать лишнюю часть можно и после обшивки. Так делается в тех случаях, когда составляется кровля из нескольких листов – появляется возможность сделать ровным свес.
Шаг 8 – обшивка каркаса поликарбонатом до установки козырька.
Далее крепим поликарбонат к каркасу на саморезы. Не знаем почему, но мастер из примера решил сделать это до монтажа конструкции к стене. Делать так не советуем по следующим причинам. Во-первых, козырек станет тяжелее, и его будет сложно поднять на высоту, выставить в уровень и удерживать в таком положении, пока вы его фиксируете. Во-вторых, материал перекрыл ему монтажные отверстия на верхней горизонтальной планке, а значит, устанавливать анкера будет затруднительно. В-третьих, увеличивается риск повредить обшивку.
По большому счету, и сам каркас можно было бы варить на высоте, и так поступают многие, если он собирается из массивных деталей.
На фотографии вы видите конечный результат работы. Получилось очень просто, но для дачного домика этого вполне достаточно. Напоминаем, что конструкцию при желании можно было украсить декоративной ковкой, что придало бы ей больше солидности.
Подведем краткий итог публикации. Назвать работу по сборке козырька, если речь идет о металлическом каркасе для него, легкой не получится, так как мастер должен уметь обращаться со сварочным аппаратом и составлять точные чертежи. Также от вас потребуется наличие инструмента, который может отыскаться не у каждого человека. Хотя в общем, если не брать в расчет сложных конструкций, вы сможете соорудить аккуратный навес и самостоятельно. Желаем тем, кто решится на такое, успехов в работе и отсутствия течей.
Цены на сотовый поликарбонат
Парники из поликарбоната с подъемным верхом – идеальный выбор для тех, кто стремится с комфортом заниматься работами на своем дачном участке. Они обладают легким весом, имеют доступную цену и просты в сборке. Как самостоятельно создать такой парник, вы сможете узнать из специальной статьи.
Видео – Козырек из поликарбоната
https://youtube.com/watch?v=xbadd5HL5mE
Видео – Крепление поликарбоната к металлическому профилю с помощью термошайб
https://youtube.com/watch?v=mmoK0R4T9i0
Уход и обслуживание поликарбонатного козырька
Поликарбонатные козырьки, как и любые другие конструкции, требуют регулярного ухода и обслуживания для обеспечения их долговечности и сохранения эстетического вида. Правильный уход поможет предотвратить повреждения и продлить срок службы козырька. Рассмотрим основные аспекты ухода за поликарбонатным козырьком.
Очистка поверхности
Первым шагом в уходе за поликарбонатным козырьком является его регулярная очистка. На поверхности могут скапливаться пыль, грязь, листья и другие загрязнения. Для очистки рекомендуется использовать мягкую ткань или губку, смоченную в теплой воде с добавлением нейтрального моющего средства. Избегайте использования абразивных чистящих средств и жестких щеток, так как они могут повредить поверхность поликарбоната.
Удаление налета и грибка
Если на козырьке появился налет или грибок, его необходимо удалить. Для этого можно использовать раствор уксуса и воды в равных пропорциях. Нанесите раствор на загрязненные участки, оставьте на несколько минут, а затем аккуратно протрите мягкой тканью. После этого тщательно промойте поверхность чистой водой, чтобы удалить остатки уксуса.
Проверка креплений и конструкции
Регулярно проверяйте крепления козырька, чтобы убедиться, что они надежно держат конструкцию. Обратите внимание на наличие коррозии или повреждений. Если вы заметили ослабленные крепления, их следует подтянуть или заменить. Также стоит проверить, нет ли трещин или повреждений в самом поликарбонате, которые могут привести к утечкам или другим проблемам.
Защита от ультрафиолетового излучения
Хотя поликарбонат обладает хорошими защитными свойствами от ультрафиолетового излучения, со временем его защитные качества могут снижаться. Для продления срока службы материала рекомендуется использовать специальные защитные покрытия, которые помогут предотвратить выцветание и разрушение поликарбоната под воздействием солнечных лучей.
Сезонное обслуживание
С приходом зимы стоит обратить внимание на снег и лед, которые могут накапливаться на козырьке. Регулярно очищайте козырек от снега, чтобы избежать перегрузки конструкции. Используйте мягкие инструменты, чтобы не повредить поликарбонат. Также стоит проверить, нет ли повреждений после зимнего сезона, чтобы вовремя устранить возможные проблемы.
Заключение
Уход за поликарбонатным козырьком не требует значительных усилий, но регулярное обслуживание поможет сохранить его в хорошем состоянии на долгие годы. Следуя простым рекомендациям по очистке и проверке конструкции, вы сможете избежать серьезных проблем и наслаждаться функциональностью и эстетикой вашего козырька.
Вопрос-ответ
На сколько должен выступать козырек?
Чтобы кровля обеспечивала достаточную защиту порога от атмосферных осадков, ее ширина должна быть минимум на 100 см большей размера площадки перед дверью. Так с каждой стороны скат крыши будет выступать над порогом по 50 см. Навес над крыльцом должен иметь достаточный запас прочности.
Какой толщины поликарбонат на козырек?
Выбор толщины поликарбоната зависит от назначения конструкции. Для небольших козырьков подойдет лист толщиной 4-6 мм, а для больших навесов рекомендуется использовать материал толщиной от 8 мм. Более толстый поликарбонат обеспечивает лучшую прочность и устойчивость к нагрузкам, включая снеговую и ветровую.
Как класть поликарбонат вдоль или поперек?
Чтобы поликарбонат прослужил долго, нужно крепить его лицевой стороной к солнцу. В противном случае материал будет уязвим к солнцу, что сильно сократит срок его службы.
Из чего лучше сделать козырек над крыльцом?
Материалом для возведения козырька может служить шифер, профнастил или силикатное стекло. Однако козырек над крыльцом из поликарбоната – наиболее приемлемый вариант, так как материал недорогой, устойчивый к влиянию высоких и низких температур и осадков.
Советы
СОВЕТ №1
Перед началом сборки козырька обязательно создайте подробный чертеж, учитывающий размеры вашего крыльца и особенности конструкции. Это поможет избежать ошибок при покупке материалов и упростит процесс монтажа.
СОВЕТ №2
Выбирайте качественный поликарбонат, который обладает хорошими теплоизоляционными и ударопрочными свойствами. Обратите внимание на толщину листов: для козырьков оптимально использовать поликарбонат толщиной от 6 до 10 мм.
СОВЕТ №3
При монтаже козырька используйте антикоррозийные крепежные элементы, чтобы продлить срок службы конструкции. Также не забудьте оставить зазоры для теплового расширения поликарбоната, чтобы избежать его деформации.
СОВЕТ №4
Регулярно проверяйте состояние козырька после установки, особенно после сильных осадков или ветров. Это поможет своевременно выявить и устранить возможные повреждения, обеспечивая долговечность конструкции.









